ICM ING. CONSTRUCORES MODERNOS ARQUITECTOS
Residential
Comercial
Industrial
Institutional
Infrastructure
Urban Palnning
Consulting
Project Management
During Construction
Process Engineering
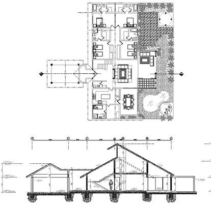
RES. LAS ACASIAS
Location
:
Casa de Campo, La Romana
,
D.R.